Projeto Padrão CAIXA – Casa Popular 42m²

R$499.00

mp-logo-hand-shake
Até 12x sem cartão com a Linha de Crédito. Saiba mais
Compre com o Mercado Crédito sem cartão e pague por mês
1
Adicione o produto ao carrinho de compras e, na hora de pagar, selecione “Linha de Crédito”.
2
Inicie sessão no Mercado Pago.
3
Escolha o número de parcelas que melhor se adapte a você e pronto!

Crédito sujeito a aprovação.

Dúvidas? Confira nossa página de Ajuda.

Pacote Técnico Completo com ART de Projeto e Execução

Construir dentro da lei não pode ser privilégio — agora é acessível.

Com este pacote, você garante que sua obra seja feita dentro das normas vigentes, com responsabilidade técnica e custo reduzido, permitindo que a população construa de forma regular, segura e legalizada.


💰 Valor do pacote

R$ 499,00


⚖️ Legalidade da obra ao alcance de todos

A ART (Anotação de Responsabilidade Técnica) é o documento que:

✔ Regulariza a obra perante os órgãos competentes
✔ Garante que o projeto e a execução tenham engenheiro responsável
✔ Evita multas, embargos e problemas futuros
✔ Dá segurança jurídica ao proprietário

👉 Com este pacote, a legalidade da construção deixa de ser cara e passa a ser acessível para todos.


📦 O que está incluso

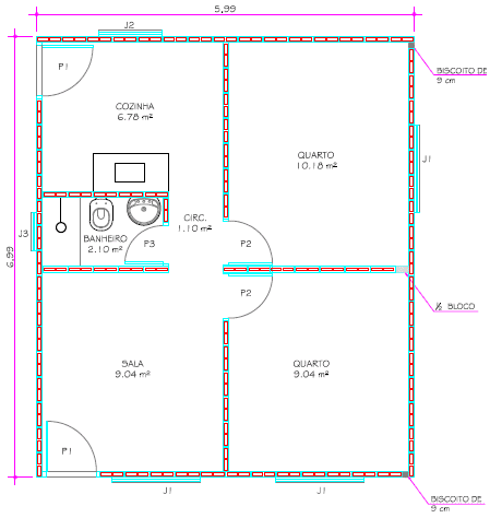
✔ Projeto Arquitetônico
✔ Diretrizes Estruturais
✔ Projeto Elétrico
✔ Projeto Hidrossanitário
✔ Memorial Descritivo
ART de Projeto
ART de Execução


🎯 Para quem é este pacote

  • Famílias de baixa renda

  • Programas habitacionais

  • Autoconstrução assistida

  • Pequenos construtores

  • Quem quer construir certo, dentro da lei e sem gastar muito


💡 Diferencial social

Enquanto o valor médio de venda de uma casa popular nestas condições ultrapassa R$ 90 mil,
este pacote custa apenas R$ 499, tornando possível que qualquer pessoa tenha:

  • Projeto regularizado

  • Obra dentro das normas técnicas

  • Responsabilidade profissional garantida

Legalidade não é luxo. É direito.


👉 Adquira agora o Pacote Completo – Casa Popular 42m²
e construa com segurança, legalidade e dignidade, pagando um valor que cabe no bolso.

🔎 Análise Técnica Gratuita

Vai construir ou reformar? Envie sua ideia, planta ou terreno e receba uma avaliação técnica gratuita com engenheiro civil.

Solicitar Análise no WhatsApp

Avaliações

Não há avaliações ainda.

Seja o primeiro a avaliar “Projeto Padrão CAIXA – Casa Popular 42m²”

O seu endereço de e-mail não será publicado. Campos obrigatórios são marcados com *

Rolar para cima