,

Plataforma de Manutenção e Sustentação – Reservatório 5000L – Pacote Premium

R$1,199.00

mp-logo-hand-shake
Até 12x sem cartão com a Linha de Crédito. Saiba mais
Compre com o Mercado Crédito sem cartão e pague por mês
1
Adicione o produto ao carrinho de compras e, na hora de pagar, selecione “Linha de Crédito”.
2
Inicie sessão no Mercado Pago.
3
Escolha o número de parcelas que melhor se adapte a você e pronto!

Crédito sujeito a aprovação.

Dúvidas? Confira nossa página de Ajuda.

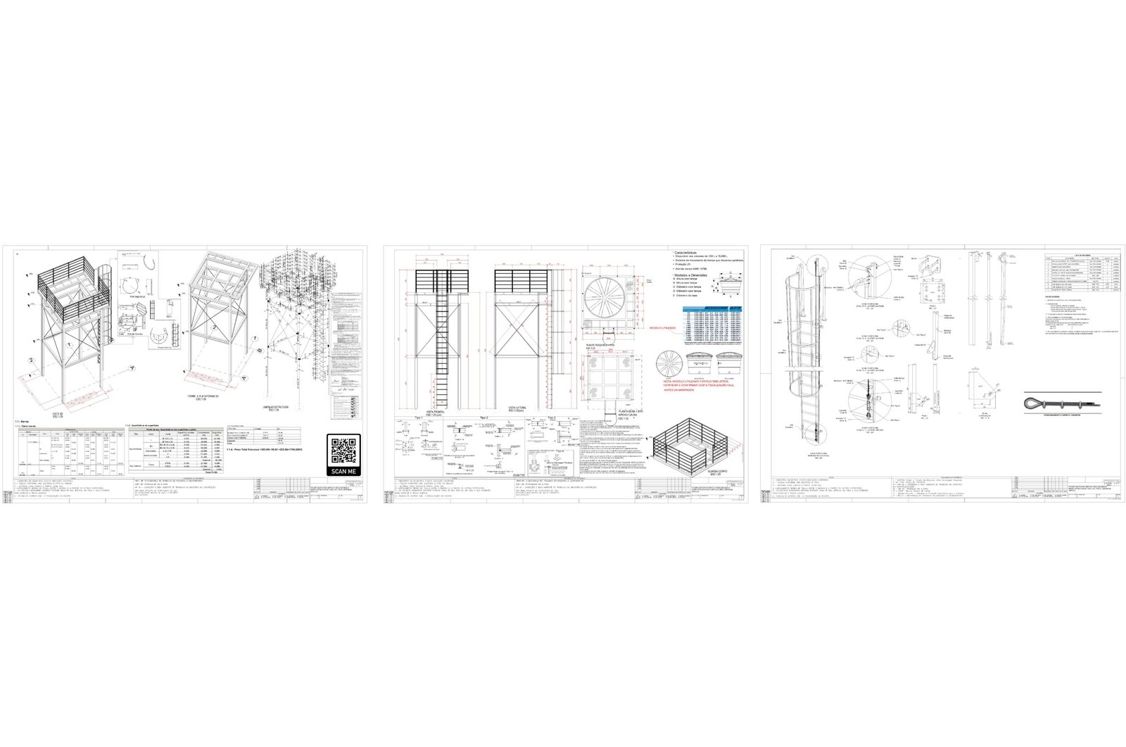
1. OBJETO DO PROJETO
Fornecimento e instalação de uma plataforma de manutenção em estrutura metálica, em formato “L”(passarela), projetada para sustentar um reservatório de água de 5.000 litros. O conjunto inclui todos os elementos de acesso e segurança, sendo um projeto completo e autônomo.

2. NORMAS TÉCNICAS APLICÁVEIS (ATUALIZADAS)
O projeto foi desenvolvido em estrita conformidade com as seguintes normas regulamentares brasileiras atualizadas:

  • ABNT NBR 6123: Forças devidas ao vento em edificações.

  • ABNT NBR 8800: Projeto de estruturas de aço e de estruturas mistas de aço e concreto de edifícios.

  • ABNT NBR 16577: Sistemas de proteção contra quedas – Linha de vida vertical.

  • NR-18 (Condições e Meio Ambiente de Trabalho na Indústria da Construção): Item 18.13.5 – Parâmetros para guarda-corpos e rodapés.

  • NR-35 (Trabalho em Altura): Item 35.2.1 – Exigências mínimas para guarda-corpos (altura mínima de 1.10m, vão máximo de 1.50m entre montantes, rodapé de 0.15m no mínimo e travamento intermediário).

3. CARACTERÍSTICAS PRINCIPAIS E MATERIAIS

  • Configuração: Plataforma em “L”.

  • Estrutura Principal: Perfilados metálicos laminados, tipo Perfil W ASTM A572 Grau 345.

  • Elementos de Segurança e Preenchimento:

    • Guarda-Corpo , Escada: Fabricados em  Aço ASTM A36.

    • Piso da Área de Circulação: Chapa Expandida (antiderrapante).

    • Base de Apoio do Reservatório: Chapa Lisa (para apoio contínuo e nivelado do reservatório), espessura a ser definida pelo cálculo estrutural para distribuir a carga concentrada.

  • Carga Útil: Projetada para sustentar um reservatório de 5.000 litros (5 m³), considerando o peso próprio da água + peso próprio da estrutura e equipamento.

4. DIMENSIONAMENTO E GEOMETRIA

  • Lado 1 da Plataforma(Passarela): 3,00 m (comprimento) x 3,00 m (largura)

  • Lado 2 da Plataforma(Passarela): 3,00 m (comprimento) x 3,00 m (largura)

  • Largura Base Apoio Reservatório:2,50 m (comprimento) x 2,50 m (largura)
  • Altura de Acesso (nível do piso): 6,70 metros.

  • Altura Apoio Reservatório(nível do piso):6,07 metros.
  • Altura Total: 8,00 metros (medida até o topo do guarda-corpo).

5. COMPONENTES DE SEGURANÇA E ACESSO (CONFORME NRs)

  • Escada de Acesso: Escada tipo “marinheiro” em tubo A36, com inclinação entre 65° e 90°, patamares e gaiola de proteção conforme  NR-35.

  • Guarda-Corpo: Sistema de proteção perimetral completo em tubo A36, atendendo integralmente à NR-35:

    • Altura do guarda-corpo: 1.10 m (mínimo),adotado 1,30m.

    • Travamento intermediário na altura de 0.50 m, atendido.

    • Rodapé de no mínimo 0.15 m, adotado 0,2032m.

    • Vão máximo entre montantes: 1.50 m, adotado eixo 1.00m.

  • Linha de Vida: Sistema de linha de vida vertical ancorado na estrutura em tubo A36, projetado conforme ABNT NBR 16577, compatível com cintos de segurança tipo paraquedista, para proteção durante a subida, descida e trabalho em altura.

6. CONSIDERAÇÕES DE PROJETO E CARREGAMENTOS

  • Carregamento de Vento: O projeto estrutural e de fundação foi calculado para um vento característico de 35 m/s, conforme NBR 6123, para terreno aberto (Categoria IV).

  • Será enviado um relatório em anexo  – Envoltórias e Cargas:  que indicam a localização exata de cada ponto de apoio da estrutura e, crucialmente, os valores das cargas (reações de apoio) atuantes em cada um desses pontos.

    • Cargas Fornecidas: As envoltórias apresentarão os valores de Carga Vertical (kN), Carga Horizontal (kN) e Momento Fletor (kN.m) para cada base dos pilares.

    • Utilização: Estes valores são imprescindíveis para que um geotécnico ou engenheiro calculista dimensione a fundação mais apropriada (sapata, bloco ou estaca), com base na capacidade de carga do solo obtida através da sondagem do local específico onde a estrutura será instalada.

7. DOCUMENTAÇÃO TÉCNICA FORNECIDA

O projeto completo é entregue na forma de:

  • Arquivo PDF: Documento final para visualização, impressão e aprovação, incluindo memorial de cálculo, detalhes de solda e especificações.

  • Arquivo DWG (EDITÁVEL): Todos os desenhos técnicos (plantas, cortes, detalhes estruturais,  em formato AutoCAD.

8. OBSERVAÇÃO CRÍTICA E LIMITAÇÕES

AVISO IMPORTANTE: Este projeto é válido exclusivamente para as condicionantes aqui descritas:

  • Perfil W A572 Gr 345 e guarda corpo e escada em ASTM A36.

  • Pisos em Chapa Expandida e base em Chapa Lisa.

  • Carga de 5.000 litros + peso próprio.

  • Vento característico de 35 m/s em terreno aberto (Categoria IV).

A fundação não está pré-dimensionada neste projeto. As cargas fornecidas nas envoltórias são o input essencial para que um profissional habilitado dimensione a fundação de acordo com a sondagem do local.

Qualquer alteração nas condições acima (carga, vento, terreno ou tipo de aço) NECESSITA DE REEXAME E VERIFICAÇÃO OBRIGATÓRIA por um engenheiro calculista responsável. A não observância invalida a garantia e a integridade da estrutura.

 

Pacote Premium ( Projeto Pronto – PDF + DWG Editável+ Linha Vida Vertical)+ Art de Projeto(a critério) + Memória Descritiva e Cargas Envoltórias + Analise Estabilidade Global da Estrutura + Nós Cargas Plataforma  + Consultoria Dúvidas.

🔎 Análise Técnica Gratuita

Vai construir ou reformar? Envie sua ideia, planta ou terreno e receba uma avaliação técnica gratuita com engenheiro civil.

Solicitar Análise no WhatsApp

Avaliações

Não há avaliações ainda.

Seja o primeiro a avaliar “Plataforma de Manutenção e Sustentação – Reservatório 5000L – Pacote Premium”

O seu endereço de e-mail não será publicado. Campos obrigatórios são marcados com *

Rolar para cima