📘 Descrição do produto
O BaseSegura Pro é um modelo profissional de memória de cálculo e projeto de fundação profunda voltado para reservatórios tipo taça com capacidade de 50.000 L (50 m³).
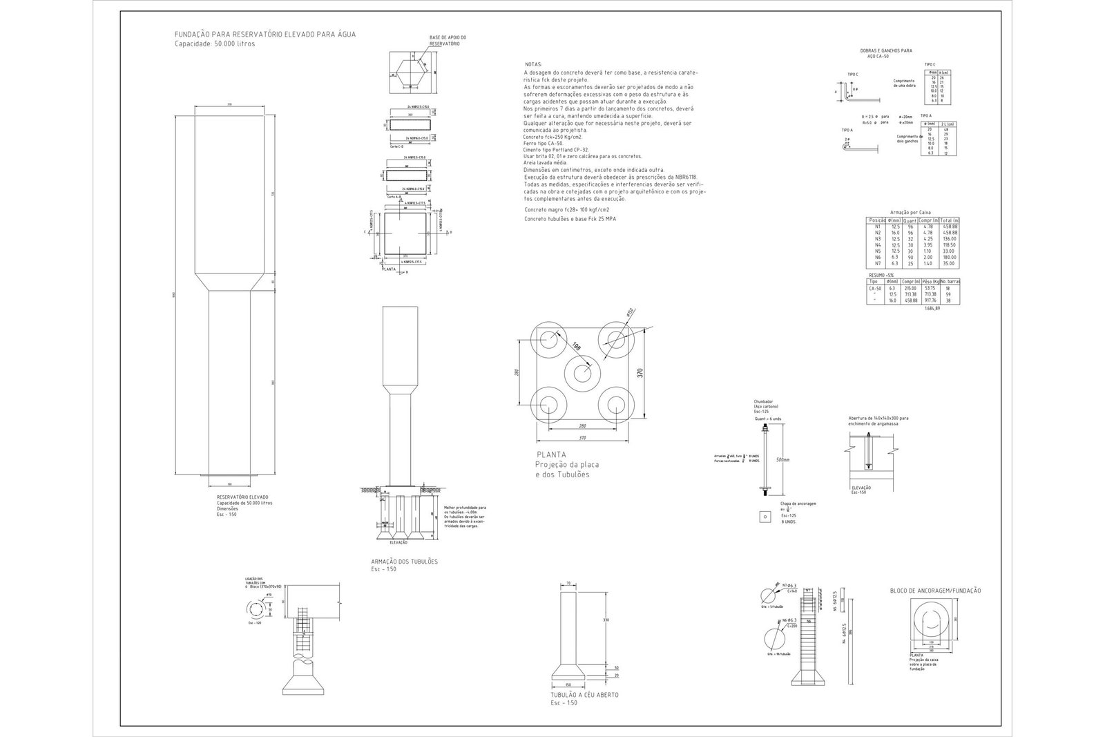
Elaborado com base nas normas NBR 6118, NBR 6122 e NBR 6123, o material apresenta de forma didática o processo completo de concepção, cálculo e justificativa geotécnica do sistema de fundação por tubulões de 70 cm, incluindo análises de vento, cargas verticais e comportamento do solo.
Este conteúdo é ideal para estudo técnico, referência comparativa e adaptação em projetos reais com características semelhantes.
⚙️ Conteúdo do material
-
📄 Memória de cálculo e justificativa técnica (PDF formatado e ilustrado)
-
📈 Interpretação dos ensaios SPT e CBR
-
🧱 Justificativa técnica da adoção de tubulões em função do solo e cargas
-
🧩 Dimensionamento estrutural do bloco de apoio
-
🌬️ Verificação da ação do vento (30 m/s – zona rural)
-
🔩 Tabela detalhada de armaduras (CA-50 e CA-60)
-
🗂️ Apêndices com imagens e diagramas originais
-
🧰 Arquivo DWG editável do projeto estrutural/fundação — pronto para adaptações, reutilização de detalhes ou ajustes conforme local da obra.
📚 Importante – Material de estudo e referência
O BaseSegura Pro foi desenvolvido como material técnico de estudo, servindo de base comparativa e guia metodológico para o desenvolvimento de projetos com características semelhantes — como reservatórios verticais, fundações profundas e estruturas submetidas a ações de vento e cargas concentradas.
Entretanto, é fundamental lembrar que cada projeto deve ser ajustado às condições específicas de implantação, levando em conta fatores como:
-
resultados locais de SPT e CBR,
-
topografia e nível d’água,
-
agressividade do solo e da água,
-
velocidade de vento característica, e
-
volume e geometria do reservatório.
Este material não substitui o projeto executivo assinado por profissional habilitado, mas fornece uma referência sólida, prática e editável para adaptação , reaproveitamento ,estudo, ensino e padronização de critérios técnicos.
👷♂️ Indicado para
-
Engenheiros civis e estruturais
-
Estudantes e pesquisadores de engenharia
-
Escritórios de projetos e consultorias técnicas
-
Construtoras que buscam padronizar estudos e memórias de cálculo
📦 O que você receberá
-
✅ Memória de cálculo descritiva referente o resultado obtido
-
✅ Pranchas e resultados de SPT e CBR utilizados
-
✅ Arquivo DWG editável para adaptação e reaproveitamento técnico
-
✅ Material pronto para impressão ou estudo digital
🔖 Entrega
-
Formato digital (PDF + DWG)
-
Entrega imediata após confirmação
🔎 Análise Técnica Gratuita
Vai construir ou reformar? Envie sua ideia, planta ou terreno e receba uma avaliação técnica gratuita com engenheiro civil.
Solicitar Análise no WhatsApp









Avaliações
Não há avaliações ainda.